Minimax 80 m²

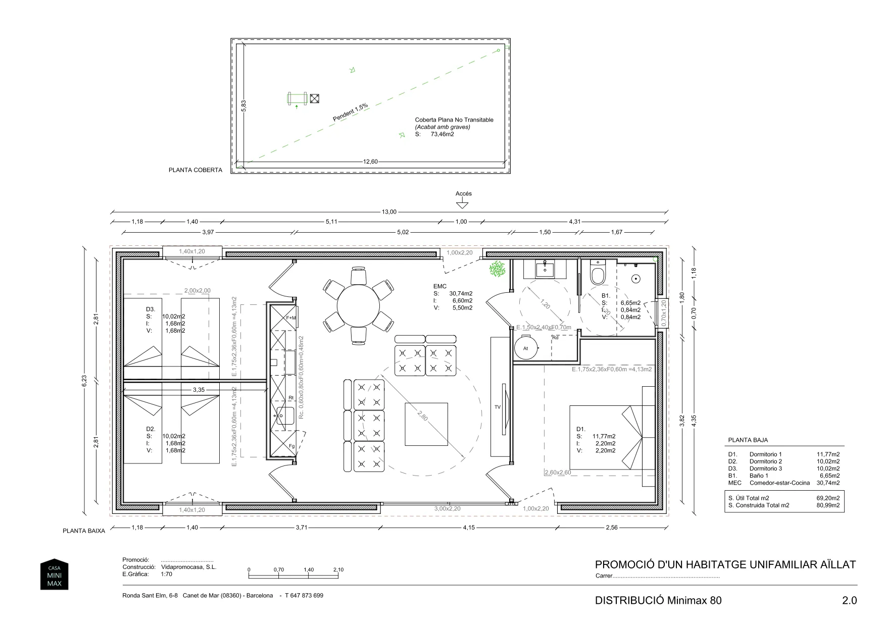
MiniMax 80 és un habitatge compacte i funcional, dissenyat per optimitzar cada metre quadrat. La distribució diferencia clarament la zona de dia i la zona de nit, garantint confort, llum natural i una circulació fluida dels espais.

1 llit de matrimoni
1 bany complet
Cuina oberta a sala d’estar i menjador
Zona d’instal·lacions

Fonamentació

La fonamentació dels habitatges MiniMax es projecta a partir de l’estudi geotècnic del terreny i es resol amb una base de grava drenant i làmina impermeable per evitar humitats. Sobre aquesta base s’executa una sabata contínua de formigó armat, dimensionada per garantir una correcta transmissió de les càrregues de les parets autoportants cap al terreny, assegurant estabilitat, durabilitat i seguretat estructural.

Estructura

El sistema estructural es basa en parets de càrrega executades amb maó encadellat Super ECO-50, un sistema de construcció tradicional optimitzat que ofereix excel·lents prestacions tèrmiques, acústiques i de resistència al foc. Les parets incorporen malles d’acer d’alta resistència entre filades per millorar el comportament estructural i evitar fissuracions. Els forjats són unidireccionals, formats per bigues metàl·liques i panells amb aïllament integrat, aportant rigidesa, confort i eficiència a l’habitatge.

Aïllaments

Les cases MiniMax compten amb un sistema d’aïllament complet i continu que garanteix un alt nivell de confort i eficiència energètica. Els tancaments exteriors incorporen sistema SATE amb aïllament tèrmic exterior d’EPS, combinat amb trasdosat interior de pladur i llana de roca, millorant el comportament tèrmic i acústic i reduint els ponts tèrmics. La coberta plana invertida i els falsos sostres amb aïllament reforcen el confort interior i la durabilitat de l’edifici.

Instal·lacions

Els habitatges MiniMax estan equipats amb instal·lacions d’alta eficiència pensades per garantir confort durant tot l’any. El sistema d’aerotèrmia permet la producció d’aigua calenta sanitària, calefacció i refrigeració amb un baix consum energètic, combinat amb climatització. A més, disposen de ventilació mecànica controlada de doble flux amb recuperador de calor, assegurant una renovació constant de l’aire interior. La instal·lació elèctrica, de fontaneria i de telecomunicacions es projecta de manera integrada per garantir funcionalitat, eficiència i estètica.

Acabats

Els acabats interiors i exteriors han estat seleccionats per oferir qualitat, durabilitat i un disseny atemporal. Els tancaments exteriors d’alumini amb trencament de pont tèrmic i vidres baix emissius milloren l’eficiència energètica i el confort interior de l’habitatge.

A l’interior, els paviments porcellànics de gran format, la fusteria interior lacada, les cuines equipades i els banys complets aporten funcionalitat, confort i un alt estàndard de qualitat en tots els espais.

Personalitza la teva casa

Tancaments

Tancaments

Delimita i afegeix seguretat la teva parcel·la amb tancaments de qualitat.

Paviment exterior

Paviment exterior

Fes que casa teva vagi més enllà de les parets.

Llar de foc

Llar de foc

Una tarda vora el foc és possible amb Minimax.

Piscina

Piscina

Un somni fet realitat, i el millor pla per als dies d’estiu.

Alguna pregunta?

FAQS